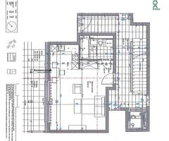
Ce charmant appartement de 3.5 pièces est constitué comme suit :
Hall d'entrée, cuisine ouverte sur le séjour avec un accès sur la terrasse de 18m2, un réduit, un WC visiteur, une salle-de-bains avec WC, une salle-de-douche et deux chambres.
Loyer : CHF 3'138.- + CHF 200.- de forfait de charges et une place de parc intérieure avec un local stockage pour CHF 250.-
Disponibilité : dès le 1er octobre ou à convenir.
Visites : Merci de contacter l'agence Bernard Nicod, Monsieur Vitali, au 022.990.90.85

