L'espace idéal pour donner vie à vos ambitions

Ecublens, Canton de Vaud, CH CHF 1 733

il y a 2 jours Tout Louer 5 vues ID #628

Description

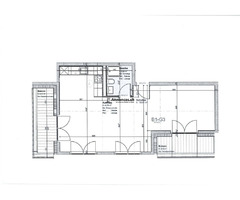
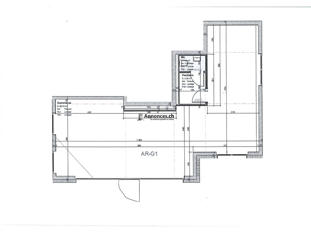
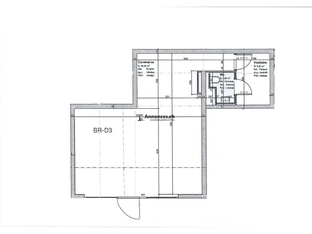
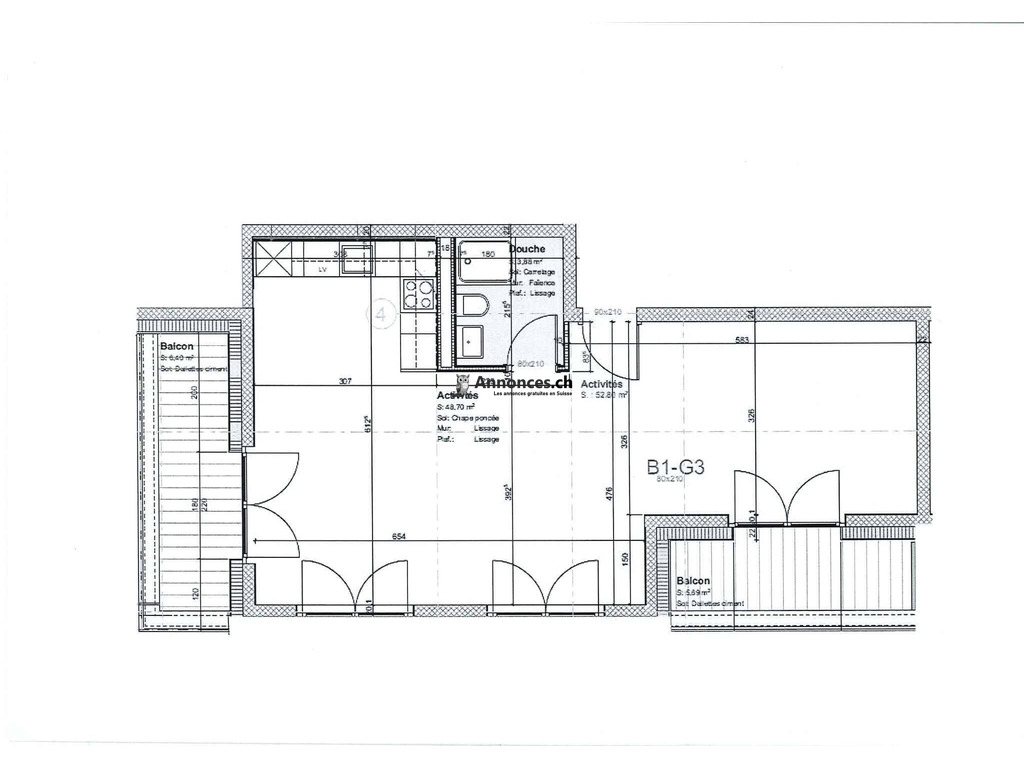
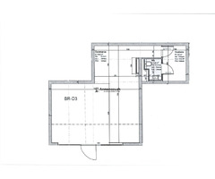
Faites le choix d'un environnement professionnel stimulant et confortable pour développer votre activité en toute sérénité en profitant d'un emplacement stratégique à Ecublens, proche des transports et commerces dans deux immeubles neufs. Nous vous proposons trois surfaces d'activités modernes, parfaitement adaptées à diverses activités comme celles en relation avec le bien-être (salon de coiffure, barber shop, institut de beauté, coaching sportif, thérapeute, etc), les professions indépendantes ou les commerces de proximité. Chacune des surfaces au rez-de-chaussée bénéficie d'un accès indépendant, d'un vestiaire privatif et de toutes les commodités nécessaires. Les trois surfaces disponibles à la location sont les suivantes : Bâtiment A : Lot AR-G1: Surface d'activités d'environ 68 m2 avec accès indépendant au rez de chaussée - loyer mensuel net : CHF 1'680.- + acompte mensuel de charges : CHF 173.- Bâtiment B: Lot BR-D3 : Surface d'activités d'environ 46 m2 avec accès indépendant au rez de chaussée - loyer mensuel net : CHF 1'600.- + acompte mensuel de charges : CHF 133.- Lot B1-G3 : Surface d'activités d'environ 53 m2 au 1er étage avec balcons - loyer mensuel net : CHF 1'610.- + acompte mensuel de charges : CHF 148.- * Les plans sont indicatifs, les surfaces sont livrées brutes et les possibilités d'aménagement seront à discuter en cas d'intérêt.

Attributs

Espace en M2 46
Loyer Net (Sans Charges) 1600
Charges 133

Commentaires 0

Aucun commentaire n'a encore ete ajoute